札幌市清田区 賃貸店舗戸建

お問い合わせ番号:f11056-153721
賃貸店舗戸建
札幌市清田区清田2条2
地下鉄東豊線:福住駅
( 車 6分  2900m )
賃料 120.00万円(税別)
(坪単価:0.69万円)
国道36号線沿いの店舗一棟貸し。駐車場20台以上。現況は店舗営業中。周辺は大型店が多く、交通量も多い地域です。
物販店、サービス業、飲食店、自動車関係、倉庫等他業種にて相談可能。
札幌のテナント情報
管理費 -
保証金
解約引
-
-
敷金
礼金
1,000万円
-
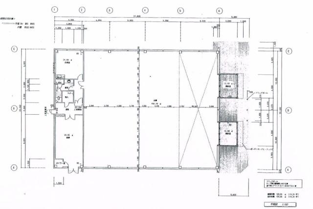
建物/専有
面積
576.00m2
(174.24坪)
土地面積 1977.00m2
(598.04坪)
築年月 1997年9月
(平成9年9月)
駐車場 空有/27台
(込み)
所在階 1階 地上階数
地下階数
-
-
構造 鉄骨造
用途地域 近隣商業地域
現況 空き予定
入居/引渡 相談 
取引 仲介
物件登録日 2025年10月16日
情報更新日 2026年1月7日
【建物解体し更地渡し(貸主負担)にて、事業用定期借地も可能。】 地代:120万円(税別)
札幌市清田区 賃貸店舗戸建 のことならお気軽にご相談ください。
テナントショップ札幌(ゆいコーポレーション)
TEL:011-376-1319
営業時間:10:00-18:00
定休日 :土・日・祝日
メールでのお問い合わせ

お電話の場合は「テナントショップを見ました。物件番号は < f11056-153721 > です」と伝えていただくとスムーズにお応えできます。

  • 借りる
  • 店舗を探す
  • 事務所・事業所を探す
  • 倉庫・工場を探す
  • 借地を探す
  • 居抜き物件
  • 買う
  • 売地を探す
フリーワード検索 [New!]
スペース区切りの複合語句検索はできません

  • 依頼する
  • 新着物件!未公開物件!地元に詳しい!
  • 物件リクエスト
  • 居抜きのまま閉店で開店費用を大幅に削減
  • スマートフォンで物件検索
  • 実績紹介
  • 物件管理
  • 会社概要・アクセス
  • ゆいコーポレーション
  • ブログ
  • Facebook